Офис юридической компании
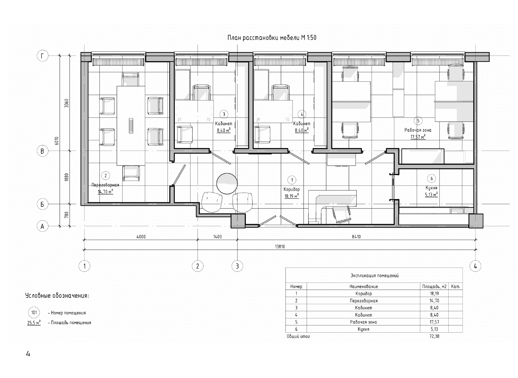
Данный проект был разработан для юридической компании. Выбранный стиль создает комфортную среду для посетителей, при этом оставаясь строгим и отражая профиль работы заказчика.
Данный проект был разработан для юридической компании. Выбранный стиль создает комфортную среду для посетителей, при этом оставаясь строгим и отражая профиль работы заказчика.